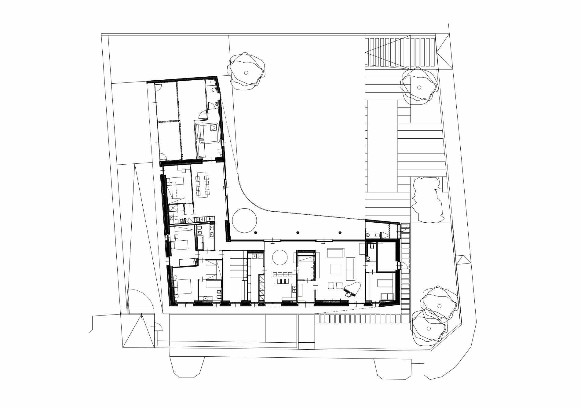
Concettualmente il progetto prevede una costruzione a forma di elle che si estende sui lati di via San Marco e verso la proprietà del lotto edificato a nord-est, in modo da poter esporre la casa verso il lato soleggiato godendo degli apporti solari diretti. Il manufatto che si presenta sostanzialmente come una piattaforma ad un piano, si prevede già la divisione in due alloggi comunque comunicanti, il primo con ingresso pedonale dal marciapiede lungo via San Marco è distribuito tutto al piano terra, il secondo alloggio con ingresso dal passo carraio posto nell’angolo nord del lotto arretrato rispetto al filo strada.
Il manufatto edilizio con linee razionali, tagli definiti per i vuoti delle aperture finestrate ha un’immagine di maggior rigore spaziale definita dalla copertura del piano terra concepita come un grande vassoio che unifica in unico gesto formale le due ali dell’edificio attraverso il raccordo curvilineo del lato a sud, creando al contempo delle zone coperte all’esterno attraverso gli sbalzi rispetto alle facciate.
La grande vetrata ad angolo rivolta verso sud permette di godere a tutta profondità del lotto di terreno e della proprietà e contestualmente permette all’edificio di poter guadagnare energia attraverso il sole nei periodi freddi, lo sporto della copertura piana permette invece di schermare la vetrata stessa dai raggi solari nei periodi caldi e quindi di evitare il surriscaldamento degli ambienti interni.
I fronti nord-est e nord-ovest sono facciate più massicce e chiuse, difatti le aperture sono di dimensioni più piccole e hanno una altezza differente. I materiali che definiscono l’architettura sono semplici e in particolare la grande copertura e i setti murari sule teste dell’edificio sono in calcestruzzo armato gettato faccia a vista e colorato in pasta grigio medio, mentre tutte le parti murarie coperte dagli aggetti saranno con sistema a cappotto e finitura ad intonaco materico con inerti a vista e colore grigio in tonalità con i setti calcestruzzo. E’ prevista la possibilità di ampliamento in futuro attraverso due corpi al piano primo in legno che permettono di dividere l’edificio in tre alloggi.
La casa è progettata, pensata e costruita secondo i criteri degli edifici passivi e ha ricevuto la certificazione dall’istituto tedesco Passivhaus.
![Studio di architettura ecA di Eros Colzani *Green Philosophy* [official web site]](https://www.ecarchitettura.it/wp-content/uploads/2023/06/logo-eros_colzani.jpg)
